2026年04月23日時点
販売中
| 価格 | 1,990万円 | ||
| 住所・最寄り駅 | 川越市西小仙波町1丁目 西武新宿線 本川越駅 徒歩14分 東武東上線 川越市駅 徒歩18分 |
||
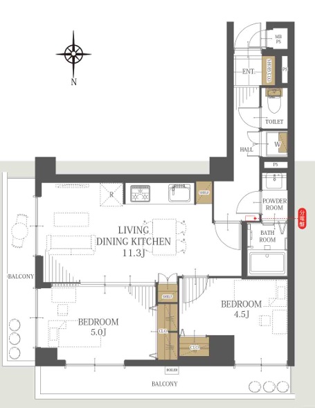
| 間取り/間取り詳細 | 2LDK LDK11.3帖 / 洋室5.0帖 / 洋室4.5帖 | 築年月 | 1987年2月 |
| 建物面積/土地面積 | 51.07㎡/㎡ | 階数 | 地上7階 |
ペット不可
エレベーター
対面キッチン
システムキッチン
コンロ3口以上
バス・トイレ別
洗濯機置き場
独立洗面台
2面以上バルコニー
フローリング
| 住所 | 川越市西小仙波町1丁目 | ||
| 交通機関 | 西武新宿線 本川越駅 徒歩14分 東武東上線 川越市駅 徒歩18分 |
||
| 間取り/間取り詳細 | 2LDK / LDK11.3帖 / 洋室5.0帖 / 洋室4.5帖 | ||
| 建物面積 | 51.07㎡ | 土地面積 | ㎡ |
| 計測方法 | 登記 | ||
| 主要採光面 | 東 | 建物構造 | 鉄筋コンクリート |
| 都市計画 | |||
| 階数 | 地上7階 | 築年月 | 1987年2月 |
| 築年月備考 | |||
| 設備・条件 | ペット不可/エレベーター/対面キッチン/システムキッチン/コンロ3口以上/バス・トイレ別/洗濯機置き場/独立洗面台/2面以上バルコニー/フローリング/ | ||
| 水道 | ガス | ||
| 土地権利 | 所有権のみ | セットバック | |
| 接道状況 | |||
| 接道1 | 側 幅員m | ||
| 地目 | 用途地域 | 商業地域 | |
| 建ぺい率 | % | 容積率 | % |
| 引渡 | 相談 | 地勢 | |
| 現況 | 空家 | 国土法届出 | |
| 取引形態 | 仲介 | 物件管理コード | 2026021107 |
| 備考・特記事項 | 図面と現況に相違がある場合、現況優先とします。
|
||
| 問い合わせ先 | 東上住宅 株式会社 | 電話番号 | 049-250-5555 |
| 建築確認番号 | |||
会員登録のメリット
①データ連携機能搭載
いつでも、どこでもPCやスマホ、タブレットなどで同じ状況で閲覧いただけます。
②物件比較機能
チェックした物件を様々な条件を並べて比較できますので絞り込みに便利です。

または
いつでも、どこでもPCやスマホ、タブレットなどで同じ状況で閲覧いただけます。
チェックした物件を様々な条件を並べて比較できますので絞り込みに便利です。
画面左下の会員登録ボタンからご登録下さい。