2026年04月11日時点
成約済み
| 価格 | ---万円 | ||
| 住所・最寄り駅 | 朝霞市田島2丁目 東武東上線 朝霞駅 バス11分 |
||
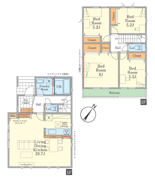
| 間取り/間取り詳細 | 4LDK LDK20.7帖 / 洋室8帖 / 洋室5.2帖 / 洋室5.2帖 / 洋室5.2帖 | 築年月 | 2026年1月 |
| 建物面積/土地面積 | 103.5㎡/100㎡ | 階数 | 地上2階 |
南道路
トイレ2か所
駐車場あり
24時間換気システム
TVモニタ付インターホン
リビングダイニング15畳以上
対面キッチン
システムキッチン
食器洗い乾燥機
浴室乾燥機あり
バス・トイレ別
洗濯機置き場
独立洗面台
シャワートイレ
シャンプードレッサー
バルコニー
床下収納
フローリング
フラット35利用可
| 住所 | 朝霞市田島2丁目 | ||
| 交通機関 | 東武東上線 朝霞駅 バス11分 | ||
| 間取り/間取り詳細 | 4LDK / LDK20.7帖 / 洋室8帖 / 洋室5.2帖 / 洋室5.2帖 / 洋室5.2帖 | ||
| 建物面積 | 103.5㎡ | 土地面積 | 100㎡ |
| 計測方法 | 登記 | ||
| 主要採光面 | 建物構造 | 木造 | |
| 都市計画 | 市街化区域 | ||
| 階数 | 地上2階 | 築年月 | 2026年1月 |
| 築年月備考 | |||
| 設備・条件 | 南道路/トイレ2か所/駐車場あり/24時間換気システム/TVモニタ付インターホン/リビングダイニング15畳以上/対面キッチン/システムキッチン/食器洗い乾燥機/浴室乾燥機あり/バス・トイレ別/洗濯機置き場/独立洗面台/シャワートイレ/シャンプードレッサー/バルコニー/床下収納/フローリング/フラット35利用可/ | ||
| 水道 | 公営水道・本下水 | ガス | 都市ガス |
| 土地権利 | 所有権のみ | セットバック | |
| 接道状況 | 二方(角地) | ||
| 接道1 | 北西側 公道 幅員5.9m | ||
| 地目 | 宅地 | 用途地域 | 第一種中高層住居専用地域 |
| 建ぺい率 | 70% | 容積率 | 150% |
| 引渡 | 相談 | 地勢 | |
| 現況 | 空家 | 国土法届出 | 不要 |
| 取引形態 | 仲介 | 物件管理コード | 2026011201 |
| 備考・特記事項 | 法第22条区域。下水処理区域。宅地造成等工事規制区域。日影規制3h-2h 4m。
図面と現況に相違がある場合、現況優先とします。駐車場/台数は車種による制限有。 私道負担159㎡1/12。ゴミ集積持分2.54㎡×1/8。 |
||
| 問い合わせ先 | 東上住宅 株式会社 | 電話番号 | 049-250-5555 |
| 建築確認番号 | 第25UDI1W建05742号 | ||
会員登録のメリット
①データ連携機能搭載
いつでも、どこでもPCやスマホ、タブレットなどで同じ状況で閲覧いただけます。
②物件比較機能
チェックした物件を様々な条件を並べて比較できますので絞り込みに便利です。
