一覧に戻る

朝霞市溝沼2丁目2号棟 新築戸建 成約済み

 2025年09月06日時点

成約済み

外観イメージパース

1F

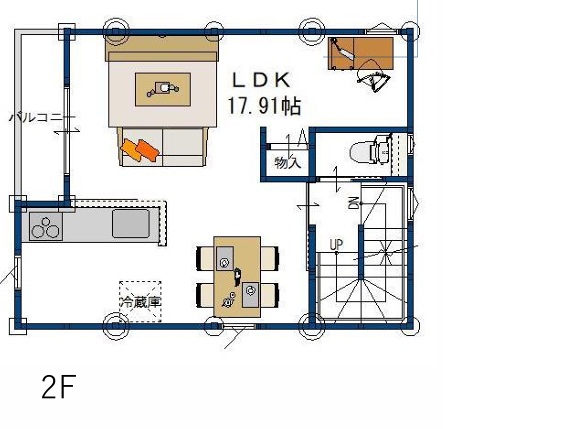
2F

3F

価格 ---万円
住所・最寄り駅 朝霞市溝沼2丁目
東武東上線 朝霞駅 徒歩17分
間取り/間取り詳細 3LDK  洋室5.25帖 / LDK17.91帖 / 洋室7.5帖 / 洋室6帖 築年月 2025年1月
建物面積/土地面積 108.6㎡/64.08㎡ 階数 地上3階

朝霞市溝沼2丁目2号棟 新築戸建 成約済みのPRポイント


設備・条件

  • トイレ2か所

  • 駐車場あり

  • ビルトインガレージ

  • 宅配ボックス

  • 24時間換気システム

  • TVモニタ付インターホン

  • リビングダイニング15畳以上

  • 対面キッチン

  • システムキッチン

  • 食器洗い乾燥機

  • 浴室乾燥機あり

  • バス・トイレ別

  • 洗濯機置き場

  • 独立洗面台

  • バルコニー

  • ウォークインクローゼット

  • フラット35利用可

朝霞市溝沼2丁目2号棟 新築戸建 成約済みの物件概要

住所 朝霞市溝沼2丁目
交通機関 東武東上線 朝霞駅 徒歩17分
間取り/間取り詳細 3LDK / 洋室5.25帖 / LDK17.91帖 / 洋室7.5帖 / 洋室6帖
建物面積 108.6㎡ 土地面積 64.08㎡
計測方法
主要採光面 建物構造 木造
都市計画 市街化区域
階数 地上3階 築年月 2025年1月
築年月備考
設備・条件 トイレ2か所/駐車場あり/ビルトインガレージ/宅配ボックス/24時間換気システム/TVモニタ付インターホン/リビングダイニング15畳以上/対面キッチン/システムキッチン/食器洗い乾燥機/浴室乾燥機あり/バス・トイレ別/洗濯機置き場/独立洗面台/バルコニー/ウォークインクローゼット/フラット35利用可/
水道 公営水道 ガス 都市ガス
土地権利 所有権のみ セットバック
接道状況 一方
接道1 西側 公道 幅員4m
地目 宅地 用途地域 第一種中高層住居専用地域
建ぺい率 60% 容積率 200%
引渡 相談 地勢
現況 空家 国土法届出 不要
取引形態 仲介 物件管理コード 2025061901
備考・特記事項 司法書士売主指定。パース・写真はイメージです。現場と異なる場合は現場優先と致します。
問い合わせ先 東上住宅 株式会社 電話番号 049-250-5555
建築確認番号 第24UDI1S建01083号